Details
Naam
Kompasstraat 74, IJmuiden












Aantal afbeeldingen: 12
IntroductieDe bakkerij naar ontwerp van Bartels was helemaal gebaseerd op de vormentaal van de Amsterdamse School. Helaas is het pand door een optopping en een merkwaardige kleurkeuze danig aangetast, zeg gerust 'verknald'.
AdresKompasstraat 74, IJmuiden
Postcode(s)1973 PZ
PlaatsIJmuiden
LandNederland
Vervaardiger Chris Bartels (Architect)
Datum1927 - 1928
OpdrachtgeverK. Wijker
Oorspronkelijke functieWinkel met bovenwoning
Huidige functieEtagewoningen / appartementen
Type objectGebouw, Geen beschermde status
AchtergrondIn 1927 ontwierp architect Bartels een bakkerij met woon-winkelhuis en bovenwoning aan de Kompasstraat in IJmuiden, in opdracht van de te Egmond aan Zee woonachtige K. Wijker Gzn. De vergunning werd verleend op 31 januari 1928. Of Wijker zelf bakker was is niet uit openbare bronnen te achterhalen. In ieder geval was hier al op 1 januari 1930 (bron: adressenboek Velsen) broodbakker W. Kromhout Van der Meer gevestigd. Kromhout Van der Meer zal in de loop van 1936 zijn verhuisd. Hij werd opgevolgd door W. Bastmeijer. Bakkerij Bastmeijer werd een begrip in IJmuiden en zou gedurende maar liefst acht decennia brood bakken in de Kompasstraat, van vader op zoon. Trots stond dan ook op de gevel 'traditioneel vakmanschap sinds 1936'.
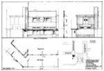
BeschrijvingVoor het oorspronkelijke aanzicht keren we terug naar de bouwtekeningen en foto's uit 2018. Het staat op een hoek in Kompasstraat, die hier niet recht door loopt maar een scherpe bocht naar rechts maakt, om aan te sluiten op de Ichthuskerk en haar gebouwen, die liggen aan een soort plein. Het pand is ontworpen met twee bouwlagen onder een plat dak. De hoek werd gemarkeerd door een driehoekige torenachtige opbouw met drie kleine raampjes, waaronder de voordeur naar de bovenwoning. Het linker geveldeel richting Ichthuskerk was iets lager dan de rest. Het liep en loopt schuin weg. Hier was de bakkerij gevestigd. Dit deel was voorzien van een houten dakrand, die iets uitstak. In het iets hogere rechter deel van de gevel was de winkel gevestigd. De dakrand van dit deel was voorzien van halfronde dakpannen. Bartels voorzag in banden van metselwerk - iets donkerder dan de rest van de bakstenen - drie karakteristieke trapraampjes en een vlaggenmast.
Recente ontwikkelingenIn november 2018 viel na 82 jaar het doek voor bakkerij Bastmeijer. Vervolgens werd vergunning verleend voor het veranderen van de bakkerij/winkel in vier appartementen en het bouwen van een dakopbouw met twee appartementen en zes bergingen. Hoewel het ontwerp van Bartels nog intact is en niet wezenlijk is aangetast, is het aanzicht onherkenbaar veranderd. De kleurstelling met veel grijs en wit doet het pand geen goed. Jammer dat er niet voor is gekozen het levendige geel en rood van de bakkerij te handhaven. Dat vormde een mooie eenheid met de baksteen.
Bronnen
Bouwdossier Velsen
Ingezonden door Gert-Jan Lobbes
Professionele of persoonlijke bandHeel jammer van dit gebouw. Het is er ongetwijfeld fijn wonen, maar in het aan monumentale panden arme IJmuiden had ik meer respect voor de oorspronkelijke architectuur verwacht.
Gerelateerde objecten