Details
Naam
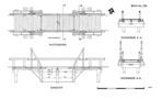
Brug 520, Amsterdamse Bos





.jpg&width=150&height=150&imageformat=jpg)


.jpg&width=150&height=150&imageformat=jpg)
.jpg&width=150&height=150&imageformat=jpg)
.jpg&width=150&height=150&imageformat=jpg)
.jpg&width=150&height=150&imageformat=jpg)
.jpg&width=150&height=150&imageformat=jpg)
.jpg&width=150&height=150&imageformat=jpg)


Aantal afbeeldingen: 17
IntroductieEen uit de serie ballenbruggen van Kramer. In 2026 kreeg de brug een nieuw kleurenschema.
AdresSpeelweide
Postcode(s)1182 AD
PlaatsAmstelveen
LandNederland
Type objectGemeentelijk monument, Brug
Vervaardiger Piet Kramer (Architect)
Publieke Werken Amsterdam (Architect)
Publieke Werken Amsterdam (Architect)
Datum1938
Huidige staatLocatie ongewijzigd en nog altijd in gebruik
OpdrachtgeverGemeente Amsterdam
Huidige eigenaarGemeente Amsterdam
AchtergrondTijdens grote roeiwedstrijden op de Bosbaan krijgt de Bosbaanweg de functie van volgweg. Het normale verkeer heeft dan geen doorgang. Vanuit het bos aan de zuidzijde van de roeibaan, wordt de weg onbereikbaar gemaakt door het openzetten van bruggen. De toegankelijkheid van het gebied rond het openluchttheater kan met ophaalbruggen worden ingeperkt. Hiervoor ontwierp Kramer een serie zogeheten 'ballenbruggetjes' over de ringsloot om het Openluchttheater heen.
De ophaalbruggetjes functioneren volgens het principe van Bernard Forest de Belidor (1693-1761). De Franse ingenieur schreef o.a. de “Architecture hydraulique” in vier delen en de wetenschappelijke resultaten van zijn studie werden tot 1830 internationaal gebruikt. Kramer gebruikte deze oude constructie als een 'grap' om de bruggetjes makkelijk te bedienen.
Brug 516, brug 519, brug 520, brug 530 en brug 531 zijn vrijwel identiek. Volgens Van Schaik cs waren de houten delen oorspronkelijk niet geschilderd maar ongelakt, waardoor al snel verval optrad.
De ophaalbruggetjes functioneren volgens het principe van Bernard Forest de Belidor (1693-1761). De Franse ingenieur schreef o.a. de “Architecture hydraulique” in vier delen en de wetenschappelijke resultaten van zijn studie werden tot 1830 internationaal gebruikt. Kramer gebruikte deze oude constructie als een 'grap' om de bruggetjes makkelijk te bedienen.
Brug 516, brug 519, brug 520, brug 530 en brug 531 zijn vrijwel identiek. Volgens Van Schaik cs waren de houten delen oorspronkelijk niet geschilderd maar ongelakt, waardoor al snel verval optrad.
BeschrijvingDe techniek van het ophaalsysteem bepaalt de vorm van deze bruggen. Om de nadruk op de techniek te houden, zijn de leuningen en het loopdek bijzonder eenvoudig gehouden. De ballenbrug wordt opengezet door de bovenste bal naar beneden te drukken. Het brugdek, de klap genoemd, gaat omhoog terwijl de stalen ballen aan de ketting tegenwicht bieden. Hoe hoger de klap komt, hoe minder tegenwicht nodig is. Dit is opgelost doordat de ballen achter elkaar in een houten goot terecht komen. Eenmaal liggend in de goot doet het gewicht van de bal niet meer mee in de hefbeweging.
Recente ontwikkelingenIn 2025 kreeg brug 520 een nieuw kleurschema. Tot dan toe waren de houten delen wit gelakt en de stalen delen blauw. De houten delen zijn in 2025 bruin gelakt, de stelen delen blauw, de ballen rood. Met de bruine lak sluit de kleur van het hout aan op de oorspronkelijke kleur, zie brug 516.
Bronnen
Sebas Baggelaar en Pim van Schaik, Piet Kramer. Bruggenbouwer van de Amsterdamse School (Stokerkade 2016).
Brochure wandelroute Kramers Bruggen (Gemeente Amsterdam, 2008)
Ingezonden door Annemarieke Verheij
Professionele of persoonlijke bandAnnemarieke Verheij 2016: Wanneer ik als kind met mijn ouders in het bos gingen wandelen vielen die ballenbruggen me al op. Pas kort geleden heb ik begrepen wat de functie van de ballen is. Een ingenieus en creatief systeem om de bruggen open te kunnen zetten.
Gert-Jan Lobbes 2026: foto's toegevoegd van na de renovatie in 2025/2026, waarbij het kleurenschema werd gewijzigd.
Gert-Jan Lobbes 2026: foto's toegevoegd van na de renovatie in 2025/2026, waarbij het kleurenschema werd gewijzigd.
Gerelateerde objecten